Portfolio
About
Contact
Portfolio
About
Contact
E
____________________
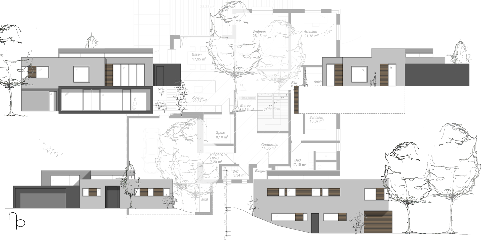
EntwurfÂ
Einfamilienhaus
Diese Website verwendet eigene Cookies und Cookies von Dritten!
Akzeptieren